Novità!
Pralungo | Casa Indipendente

Immobile in:

Vendita

Località Immobile:

Pralungo

Superficie:

200 mq

Prezzo:

120.000 €

Trattativa Riservata

Descrizione dell’immobile:

Pralungo; proponiamo in vendita splendida casa indipendente di circa 200 mq, situata in posizione tranquilla e con ogni tipo di servizio appena fuori casa,  mantenuta in condizioni eccellenti. La soluzione perfetta per chi cerca ampi spazi e comfort senza lo stress di lavori di ristrutturazione.

L’abitazione si distingue per un accogliente soggiorno con camino a legna, ideale per l’atmosfera invernale, e serramenti con doppi vetri che garantiscono isolamento e risparmio energetico. Cucina abitabile, due bagni spaziosi e 3 ampie camere da letto.

Completano la proprietà una pratica zona lavanderia, una spaziosa cantina e un locale deposito, offrendo tutto lo spazio necessario per l’organizzazione della casa. Esternamente, la proprietà vanta un piccolo giardino privato di facile gestione e due autorimesse.

Pronta da abitare subito. Un rapporto metratura/prezzo introvabile in zona!

Richiesta SOLI € 120.000,00

L'immobile è inoltre dotato di:

Balcone, Cantina, Caminetto

Ulteriori Caratteristiche

Ubicazione: Comodo a tutti i servizi, Vicino a scuole primarie, In pieno centro, Vicino ad un asilo, Su strada che consente un facile accesso all’immobile
Condizioni dell’immobilie: In Ottime Condizioni
Riscaldamento: Autonomo
Arredamento: Parzialmente Arredato
Serramenti: Doppio Vetro e Telaio in Legno
Qualità delle Finiture: Alta Qualità
Garage: Si

Mappa

Dati Tecnici e Fiscali

APE: In Attesa
Categoria Catastale: A/3 Abitazioni di tipo economico
ID Immobile: 13659

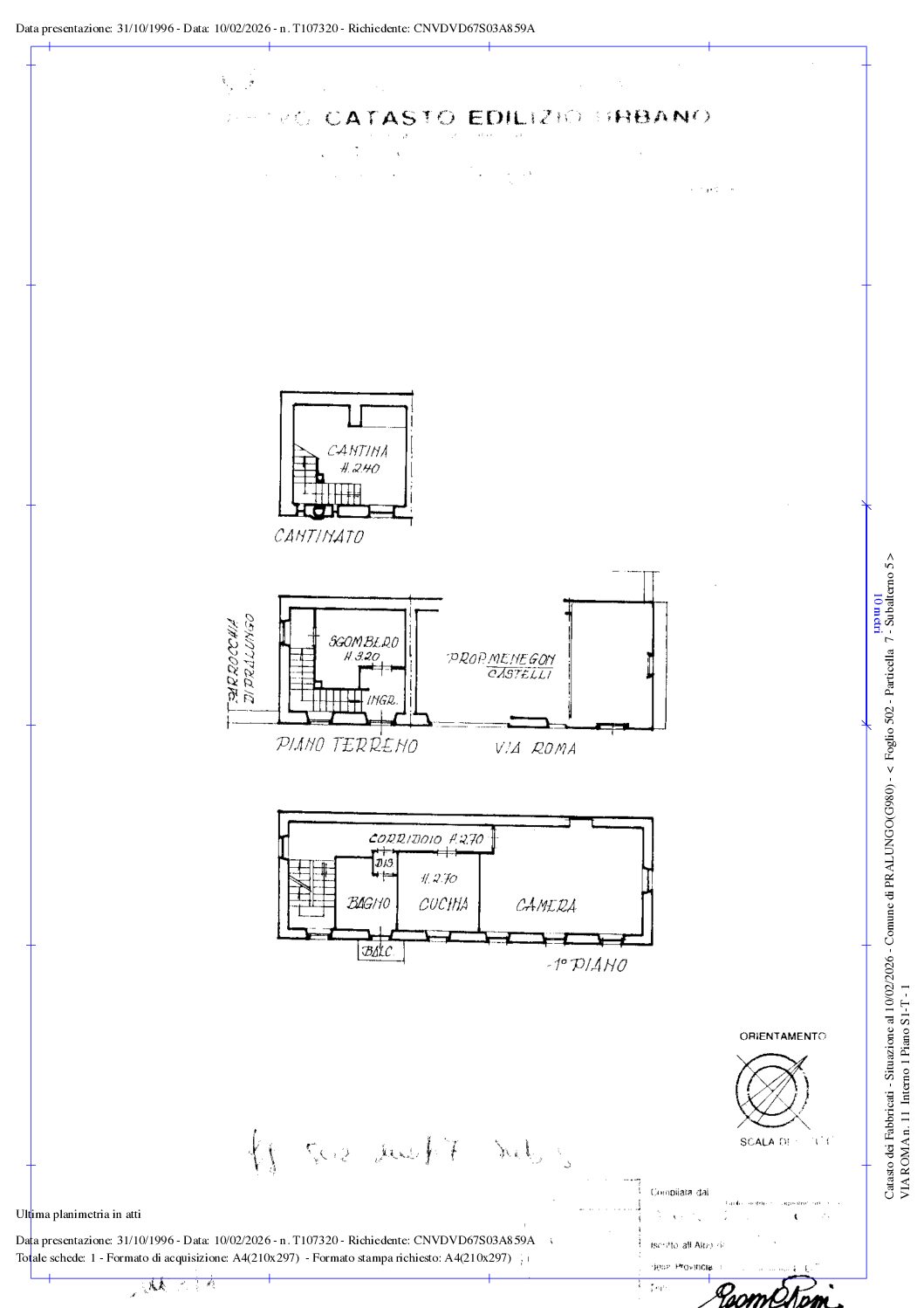
planimetria

Per ulteriori informazioni… +39 015 849 37 05
o anche +39 329 81 30 489
Abita | Gente in Movimento Sempre!
Condividi
Condividi

Altre Proposte Abita

Località: Occhieppo Inferiore

Affitto

580 €

venduto_abita_agenzia_immobiliare_biella
affittato agenzia immobiliare abita biella
Alloggio ultimo piano in casa bifamiliare

mq: 90

Cucina a Vista

Camere Letto: 2

Bagni: 1

Box: No

Giardino: Assente

Località: Occhieppo Inferiore

Vendita

380.000 €

venduto_abita_agenzia_immobiliare_biella
affittato agenzia immobiliare abita biella

Novità!

Occhieppo Inf. | Villa Indipendente

mq: 300

Cucina Abitabile

Camere Letto: 3

Bagni: 2

Box: Doppio

Giardino: Privato

Località: Biella

Vendita

550.000 €

venduto_abita_agenzia_immobiliare_biella
affittato agenzia immobiliare abita biella

Novità!

Biella Piazzo | Villa con Parco

mq: 220

Cucina Abitabile

Camere Letto: 3

Bagni: 3

Box: Doppio

Giardino: Privato

Località: Cossato

Vendita

105.000 €

venduto_abita_agenzia_immobiliare_biella
affittato agenzia immobiliare abita biella

Novità!

Cossato | Zona Centrale

mq: 135

Cucina Abitabile

Camere Letto: 2

Bagni: 1

Box: Doppio

Giardino: Assente

Località: Lugano

Vendita

0 €

venduto_abita_agenzia_immobiliare_biella
affittato agenzia immobiliare abita biella

Trattativa Riservata

Cadegliano | Varie Tipologie

mq: 50

Cucina Abitabile

Camere Letto: 2

Bagni: 1

Box: No

Giardino: Privato

Località: Lugano

Vendita

0 €

venduto_abita_agenzia_immobiliare_biella
affittato agenzia immobiliare abita biella

Trattativa Riservata

Lugano | Investimento Garantito

mq: 90

Cucina Abitabile

Bagni: 2

Box: Si

Giardino: Comune

Torna in alto

Iscriviti alla nostra Newsletter!

Ricevi via e-mail le ultime novità immobiliari disponibili presso la nostra agenzia, le date dei corsi e delle interviste in diretta sui nostri canali social!

Newsletter Abita
agenzia immobiliare abita
Ti interessa questo immobile?
Chiamaci al numero
+39 015 849 37 05

Oppure Scrivici!

Iscrizione effettuata con successo

A presto!

agenzia immobiliare abita logo

Richiesta Inviata correttamente!

Grazie!