Biella | Locale Comm.

Immobile in:

Vendita

Località Immobile:

Biella

Superficie:

440 mq

Prezzo:

49.000 €

Trattativa Riservata

Descrizione dell’immobile:

IMPERDIBILE OPPORTUNITÀ COMMERCIALE A BIELLA CENTRO! VENDESI LOCALI COMMERCIALI CON OTTIMA VISIBILITÀ – PRONTI ALL’USO.

Sei alla ricerca della posizione perfetta per la tua attività? Non perdere questa occasione unica nel cuore di Biella Centro! Proponiamo in vendita un complesso di locali commerciali caratterizzati da una POSIZIONE STRATEGICA con massima visibilità e forte passaggio, ideali per ogni tipo di attività. I locali sono PRONTI ALL’USO, in ottime condizioni e subito operativi.

Godono di un impianto termo autonomo per una gestione indipendente ed efficiente del riscaldamento. L’immobile è strutturato in tre blocchi distinti, offrendo una flessibilità unica: è possibile l’acquisto in blocco per un ottimo investimento immobiliare, oppure la vendita separata dei singoli blocchi per chi cerca metrature specifiche, con prezzi a PARTIRE DA 49.000€ per l’unità più piccola.

Questa è la soluzione ideale per imprenditori e investitori che vogliono garantire alla propria attività la migliore vetrina sulla città.

Per maggiori informazioni e per fissare un sopralluogo senza impegno, contattaci subito!  Non lasciarti sfuggire questa occasione al centro di Biella!

L'immobile è inoltre dotato di:

Porta Blindata, Aria Condizionata, Vetrine

Ulteriori Caratteristiche

Ubicazione: Comodo a tutti i servizi, In pieno centro, Su strada che consente un facile accesso all’immobile
Condizioni dell’immobilie: Nuovo
Riscaldamento: Autonomo
Arredamento: Non Arredato
Qualità delle Finiture: Alta Qualità
Posto Auto: Si

Mappa

Dati Tecnici e Fiscali

APE: D
Indice Prestazione Energetica: 63.0712 kWh/m²
Categoria Catastale: C/1 Negozi e botteghe
ID Immobile: 13344

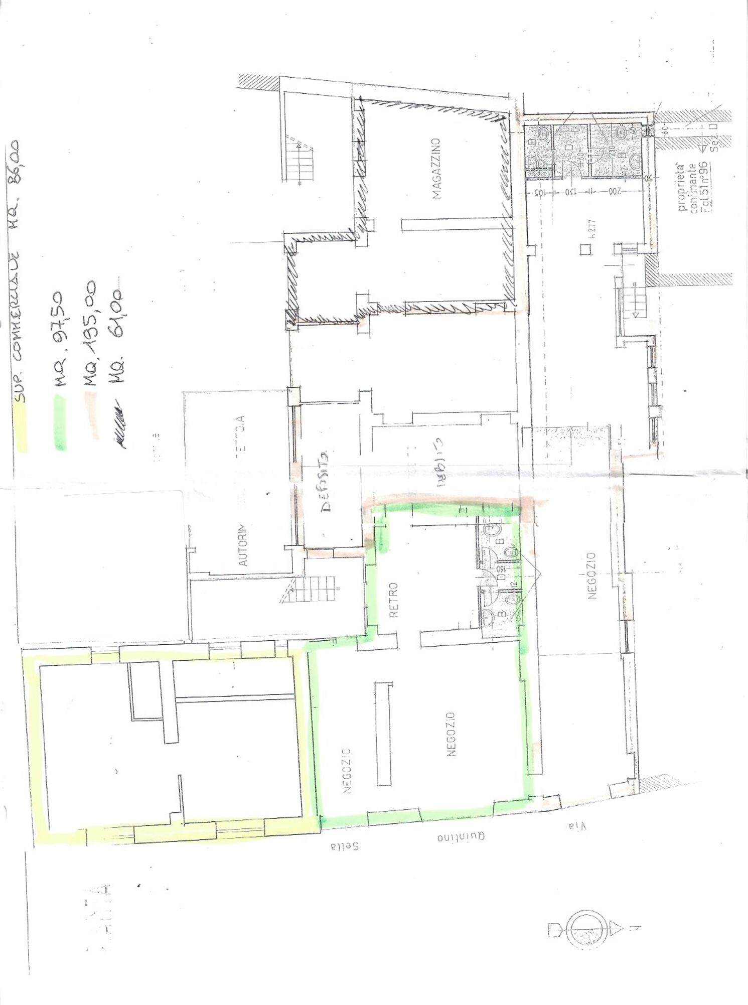
Planimetria

Per ulteriori informazioni… +39 015 849 37 05
o anche +39 329 81 30 489
Abita | Gente in Movimento Sempre!
Condividi
Condividi

Altre Proposte Abita

Località: Pralungo

Vendita

120.000 €

venduto_abita_agenzia_immobiliare_biella
affittato agenzia immobiliare abita biella

Novità!

Pralungo | Casa Indipendente

mq: 200

Cucina Abitabile

Camere Letto: 3

Bagni: 2

Box: Si

Giardino: Privato

Località: Cossato

Vendita

105.000 €

venduto_abita_agenzia_immobiliare_biella
affittato agenzia immobiliare abita biella

Novità!

Cossato | Zona Centrale

mq: 135

Cucina Abitabile

Camere Letto: 2

Bagni: 1

Box: Doppio

Giardino: Assente

Località: Lugano

Vendita

0 €

venduto_abita_agenzia_immobiliare_biella
affittato agenzia immobiliare abita biella

Trattativa Riservata

Cadegliano | Varie Tipologie

mq: 50

Cucina Abitabile

Camere Letto: 2

Bagni: 1

Box: No

Giardino: Privato

Località: Lugano

Vendita

0 €

venduto_abita_agenzia_immobiliare_biella
affittato agenzia immobiliare abita biella

Trattativa Riservata

Lugano | Investimento Garantito

mq: 90

Cucina Abitabile

Bagni: 2

Box: Si

Giardino: Comune

Località: Lugano

Vendita

550.000 €

venduto_abita_agenzia_immobiliare_biella
affittato agenzia immobiliare abita biella

Novità!

Lugano | Investimento Garantito

mq: 90

Cucina Abitabile

Camere Letto: 2

Bagni: 1

Box: Si

Giardino: Comune

Località: Cossato

Vendita

66.000 €

venduto_abita_agenzia_immobiliare_biella
affittato agenzia immobiliare abita biella

In Trattativa!

Cossato | Pari al Nuovo

mq: 110

Cucina Abitabile

Camere Letto: 2

Bagni: 1

Box: Si

Giardino: Assente

Torna in alto

Iscriviti alla nostra Newsletter!

Ricevi via e-mail le ultime novità immobiliari disponibili presso la nostra agenzia, le date dei corsi e delle interviste in diretta sui nostri canali social!

Newsletter Abita
agenzia immobiliare abita
Ti interessa questo immobile?
Chiamaci al numero
+39 015 849 37 05

Oppure Scrivici!

Iscrizione effettuata con successo

A presto!

agenzia immobiliare abita logo

Richiesta Inviata correttamente!

Grazie!